constructed 2025 – albuquerque, nm
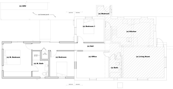
An addition that provided a master suite + another bedroom to expand the house for a growing family. I also helped them design the renovation for their kitchen in the existing house.






An addition that provided a master suite + another bedroom to expand the house for a growing family. I also helped them design the renovation for their kitchen in the existing house.





