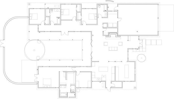
completed 2020 – placitas, NM
Studio melodico worked with the clients to design a courtyard house for their lot in Placitas, NM. The intent was to develop a conceptual site and house design which culminated in a pricing set for establishing construction costs. Due to the COVID 19 pandemic, the project was ultimately abandoned.





